Page suivante
Page précédente
Conchil-le-Temple (62180)

Maison 9 pièce(s) 6 chambre(s) 196.18 m²

1
3
1038 m²
315 000 €
Réf MJVMA20000070

Belle maison style longère pleine de charme de 227 m2, en brique rouge dans le dynamique village de Conchil-le-Temple, avec 2 gîtes en activité avec entrée indépendante.

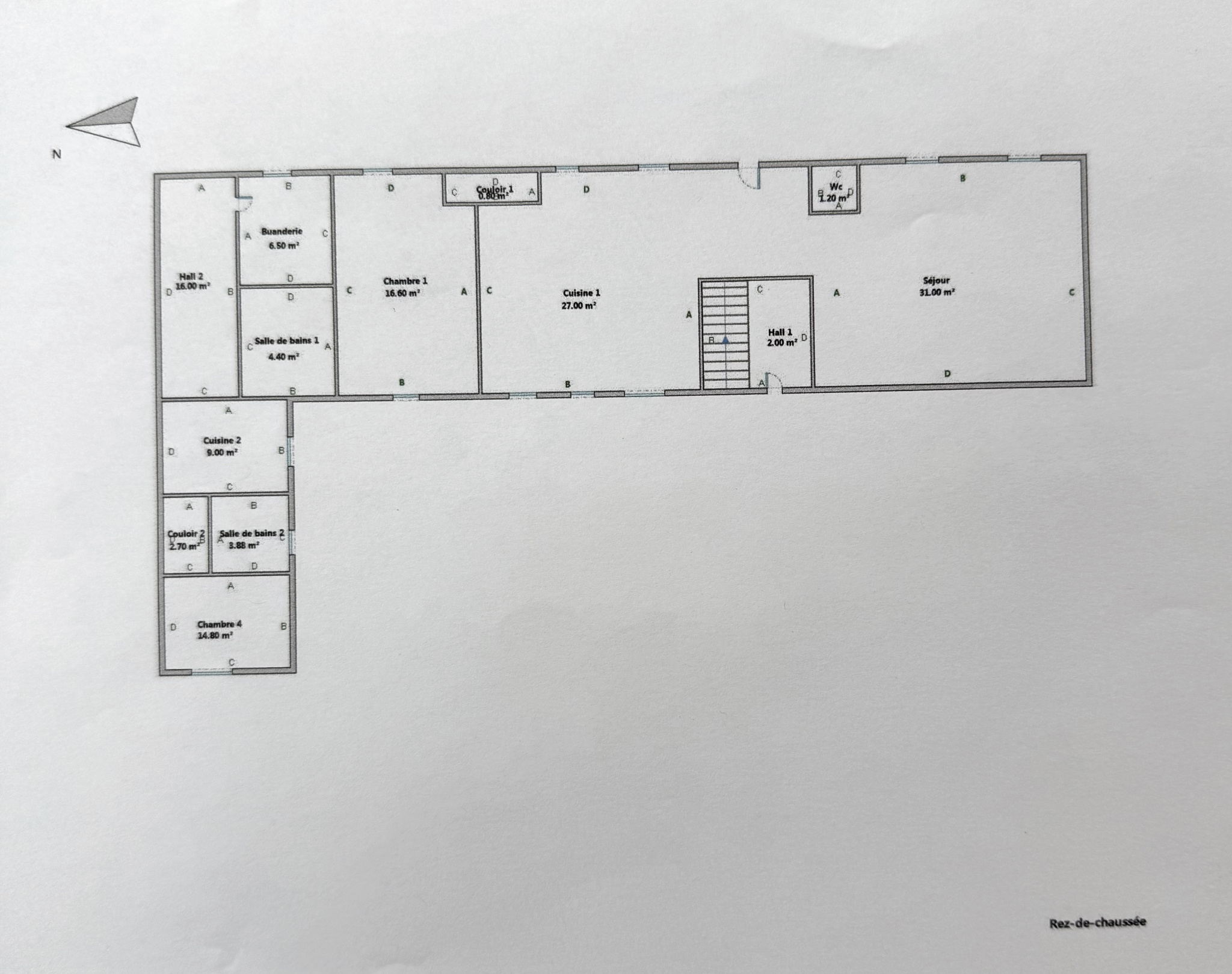
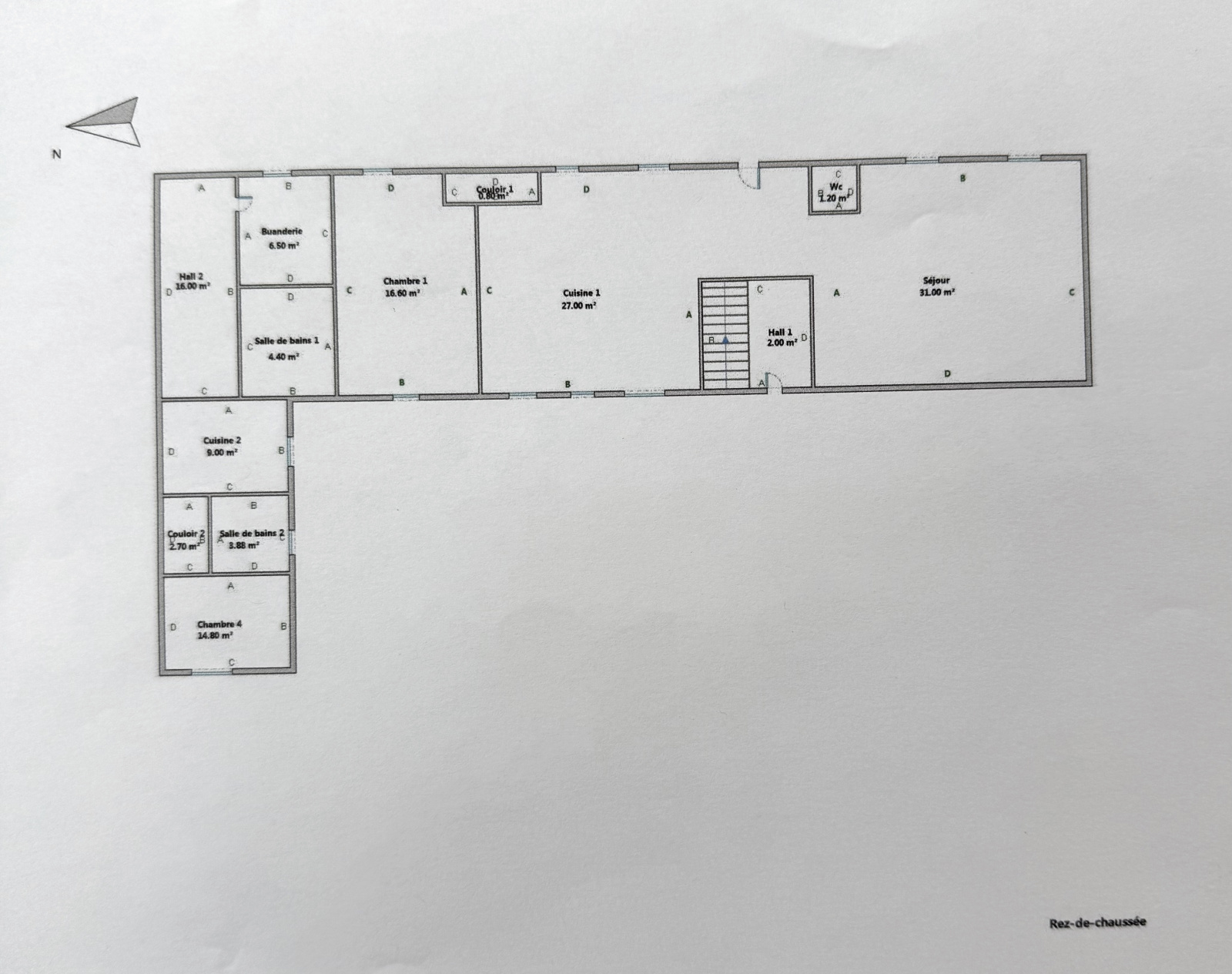
La maison principale se compose d'un magnifique séjour cathédrale lumineux avec une grande cheminée à insert, une vaste cuisine aménagée avec un poêle Godin et un four à pain/pizza. Une chambre avec salle d'eau et wc, une buanderie et un wc visiteurs complètent ce rez-de-chaussée, ce qui permet une vie de plain-pied.

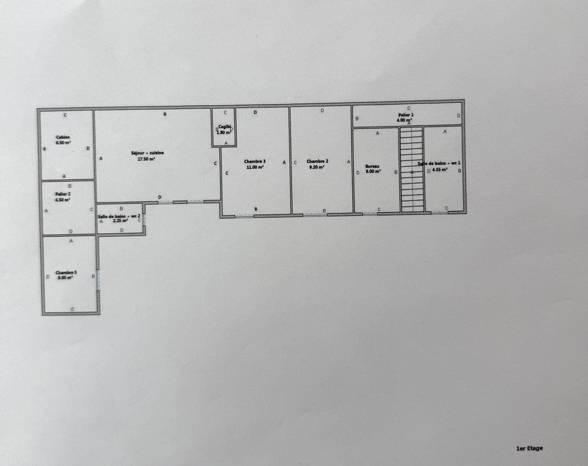
A l'étage un palier dessert un bureau, deux chambres en enfilade, une salle d'eau et un wc.

Le premier gîte se compose d'une pièce de vie de caractère et lumineuse, une chambre avec lavabo, une chambre cabine, et une salle d'eau/wc.

Enfin, le 2ème gîte en rez-de-jardin se compose d'une cuisine, une belle salle d'eau et une grande chambre lumineuse ouverte sur un jardinet privatif.

Un revenu locatif moyen de 18k euros par an peut tout à fait être encore développé.

Aux beaux jours vous profiterez d'une belle terrasse et d'un agréable terrain clos de 1'038 m2 ensoleillé orienté ouest, au calme et sans vis-à-vis.

Un garage indépendant de 22 m2 complète cet ensemble.

Le chauffage est fourni par une pompe à chaleur installée en 2022, qui assure de belles économies d’énergie avec un DPE en C.

La maison est reliée à la fibre et l'assainissement est assuré par une fosse septique.

Conchil-le-Temple est idéalement situé à 10 minutes des bords de mer, de nombreux sentiers de randonnée ainsi que des beaux sites historiques et touristiques de la baie de Somme et du Pas de Calais.


Bilan énergétique

Diagnostics énergetiques
A propos de ce bien Caractéristiques de ce bien
  • Surface 196,18 m²
  • carrez 196,18 m²
  • terrain 1 038 m²
  • 6 chambre(s)
  • 1 salle(s) de bain
  • 3 salle(s) d'eau
  • construit en 1948
  • cuisine séparée (équipée)
  • 1 garage(s)
  • exposition Ouest
  • 1 niveau(x)
  • 1er étage
  • terrasse

Composition

Composition de ce bien

Rez-de-chaussée

  • salon/sejour 31 m²
  • chambre 16.60 m²
  • salle de bain 4.40 m²
  • buanderie 6.50 m²
  • cuisine 9.00 m²
  • salle de bain 3.88 m²
  • chambre 14.80 m²
  • entrée 16.00 m²
  • entrée 2.00 m²
  • cuisine 27 m²

Etage 1

  • chambre 9.20 m²
  • chambre 11.00 m²
  • salon/sejour 17.50 m²
  • Palier 4.5 m²
  • chambre 9.00 m²
  • Palier 4.00 m²
  • salle de bain 4.55 m²
  • bureau 6.00 m²
  • chambre 6.50 m²

Financier

Informations financières
Prix de vente honoraires TTC inclus 315 000 €
Prix net vendeur 300 000 €
Prix de vente honoraires TTC exclus 300 000 €
Honoraires TTC à la charge acquéreur 5 %
Taxe foncière annuelle 1 587 €

Simulation

Calcul des mensualités
* Champs obligatoires
Jacqueline MABRIEZ Négociatrice