Page suivante
Page précédente
Montreuil (62170)

Appartement 3 pièce(s) 2 chambre(s) 74.42 m²

1
1
324 400 €
Réf MJVRE20000064

Coup de coeur assuré pour ce bel appartement de 3 pièces au rez-de-chaussée, au sein d'une résidence de standing, sécurisée et récente (2021). Cet appartement bénéficie d'un accès pour les personnes à mobilité réduite, que ce soit à l'intérieur de l'appartement comme à l'extérieur, tout en restant au calme absolu et en retrait de la route.

La résidence se situe dans un quartier historique de Montreuil-sur-Mer, à proximité immédiate de la promenade des Remparts et à quelques pas des commerces. L'emplacement est aussi le départ des 7 sentiers de Montreuil-sur-Mer sur le GR121 assurant de magnifiques ballades ou randonnées.

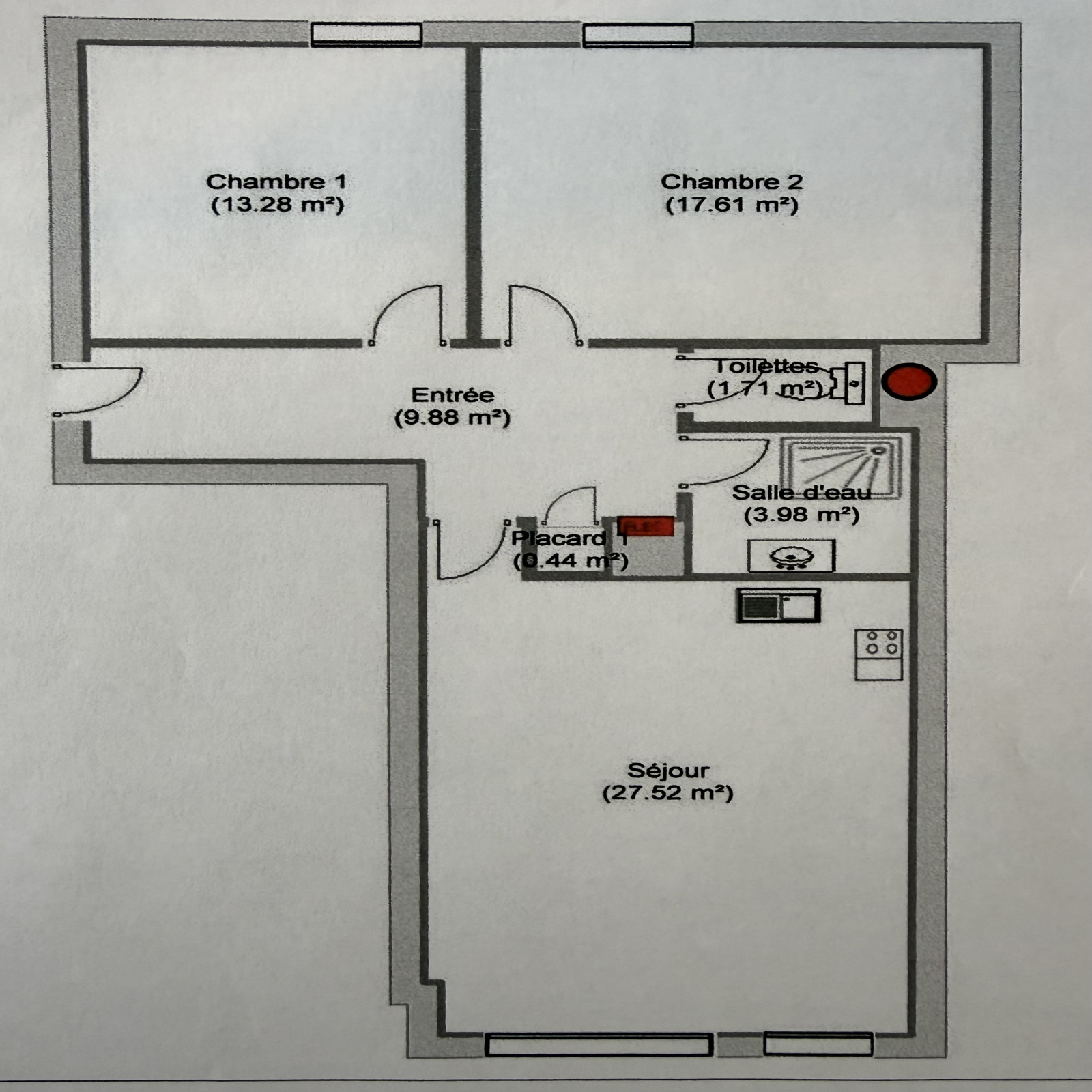
L'entrée s'ouvre sur un grand hall avec placard qui dessert deux belles chambres (17 et 13 m2), une vaste salle d'eau avec grande douche à l'Italienne et un wc indépendant.

La spacieuse pièce de vie comprend une belle cuisine totalement équipée, ouverte sur la salle à manger et le salon. La grande baie vitrée du salon apporte une belle luminosité dans la pièce principale et donne accès à la terrasse et au jardinet de 26 m2 totalement clôturé permettant de profiter d'un bel extérieur sécurisé durant les beaux jours.

Une place de parking extérieur privée complète ce bien.

Les charges mensuelles s'élèvent à 95 euros, le fonds de travaux à 150 euros par an. La taxe foncière est de 1'173 euros par an. Il n'y a pas de gros travaux prévus ni de procédure en cours.

Les plus de cet appartement :

-Résidence sécurisée de standing avec visiophone, portail électrique.

-Accès PMR.

-Garantie décennale.

-Emplacement rare et historique, calme et verdoyant tout en restant proche des commerces.

N'hésitez pas à nous contacter pour des renseignements ou une visite !

Bilan énergétique

Diagnostics énergetiques
A propos de ce bien Caractéristiques de ce bien
  • Surface 74,42 m²
  • carrez 74,42 m²
  • séjour 27,52 m²
  • 2 chambre(s)
  • 1 salle(s) d'eau
  • construit en 2021
  • cuisine américaine (équipée)
  • Chauffage individuel : chaudière (gaz de ville)
  • exposition Ouest
  • 1 côté(s) mitoyen(s)
  • 3 étage(s)
  • terrasse
  • visiophone
  • interphone
  • accès handicapé

Composition

Composition de ce bien

Etage 3

  • chambre 13.28 m²
  • chambre 17.61 m²
  • salon/sejour 27.52 m²
  • salle de bain 1.71 m²
  • chambre 10.32 m²
  • salle de bain 3.98 m²

Info copro

Copropriété
  • Copropriété Oui
  • Lot n° 11 et 31
  • Quote part annuelle des charges 1 140 €
  • Plan de sauvegarde Non
  • Statut du syndic Pas de procédure en cours

Financier

Informations financières
Prix de vente honoraires TTC inclus 324 400 €
Prix net vendeur 310 000 €
Prix de vente honoraires TTC exclus 310 000 €
Honoraires TTC à la charge acquéreur 4,65 %
Charges 95 €
Taxe foncière annuelle 1 173 €

Simulation

Calcul des mensualités
* Champs obligatoires
Jacqueline MABRIEZ Négociatrice