Page suivante
Page précédente
Verton (62180)

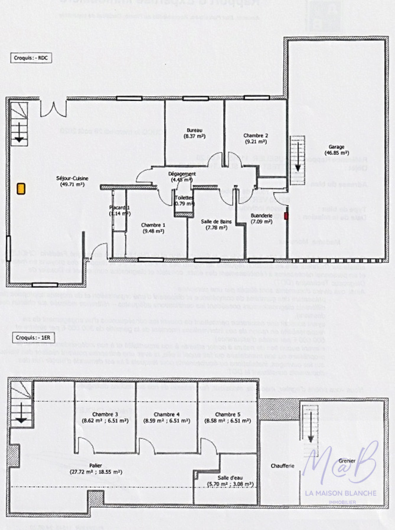
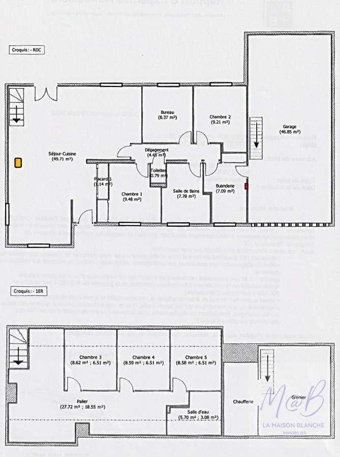
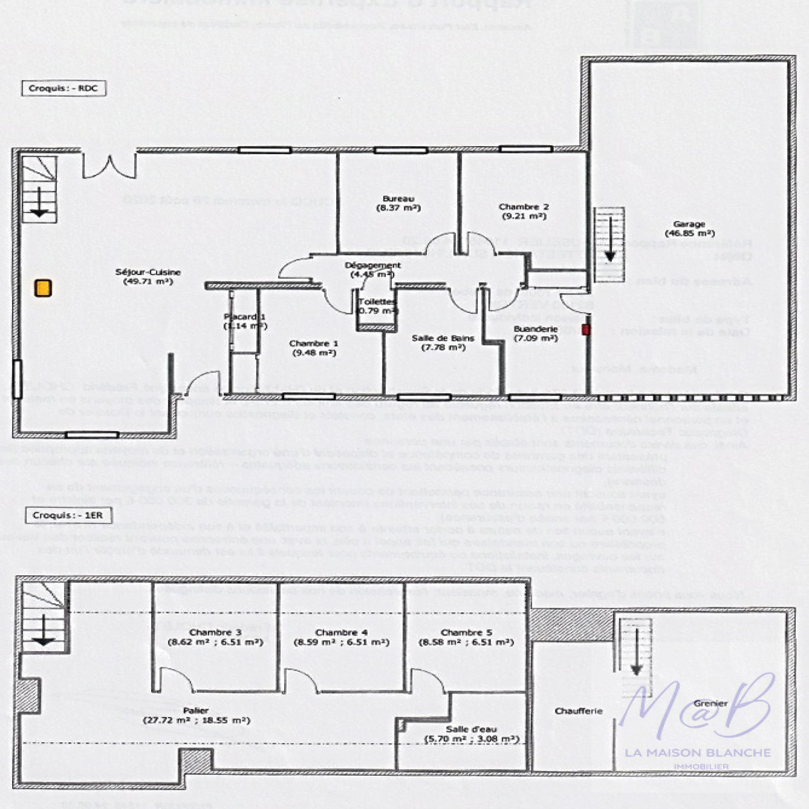
Maison 7 pièce(s) 6 chambre(s) 160 m²

1
2
1951 m²
441 000 €
Réf LV10000019

Trop tard, cette maison est sous offre ! N'hésitez pas à me contacter pour votre projet de vente ou d'achat.

Belle propriété à vendre à Verton, au calme tout en étant proche à pied des commerces ! Cette maison parfaitement entretenue permet une vie de plain-pied grace à ses 3 chambres et sa salle de bains au rez-de-chaussée. Ce niveau est complété par une lingerie et bénéficie d'un accès direct à la grande terrasse bien exposée Ouest. La cuisine est conviviale et très pratique ! L'espace de vie lumineux comprend également un poële à pellets récent. Au 1er étage, un grand palier dessert 3 autres chambres ainsi qu'une autre salle de bains. Cette maison ne nécessite pas de travaux et est particulièrement agréable à vivre avec un bel extérieur totalement clos et sans vis-à-vis. Le jardin est joliment arboré mais reste facile à entretenir. Un grand garage communicant à la maison vous permettra de garer votre véhicule et également de bénéficier d'un grand espace de rangement. Le chauffage est assuré par une pompe à chaleur avec de belles économies à la clef. Le DPE est en cours. Contactez-nous pour une visite ! Une visite virtuelle à 360 degrés est également disponible sur demande.

Bilan énergétique

Diagnostics énergetiques
A propos de ce bien Caractéristiques de ce bien
  • Surface 160 m²
  • terrain 1 951 m²
  • séjour 49 m²
  • 6 chambre(s)
  • 1 salle(s) de bain
  • 2 salle(s) d'eau
  • construit en 1990
  • cuisine américaine (équipée)
  • 1 garage(s)
  • 5 parking(s)
  • exposition Est-Ouest
  • 1 niveau(x)
  • vue jardin
  • terrasse
  • arboré
  • visiophone
  • interphone
  • accès handicapé

Financier

Informations financières
Prix de vente honoraires TTC inclus 441 000 €
Prix net vendeur 420 000 €
Prix de vente honoraires TTC exclus 420 000 €
Honoraires TTC à la charge acquéreur 5 %
Taxe foncière annuelle 1 400 €

Simulation

Calcul des mensualités
* Champs obligatoires
LA MAISON BLANCHE Agence